- Особенности планировок в ЖК «Остров»
- Как улучшить планировку в ЖК «Остров»: примеры
- С чего начинать перепланировку в ЖК «Остров»
- Технические особенности ЖК «Остров»
- Исходная документация от управляющей компании «Смарт Сервис»
- Рабочая документация для квартир в ЖК «Остров»
- Стоимость и сроки согласования перепланировки
- Итог
ЖК «Остров» — жилой квартал бизнес-класса от застройщика «Донстрой». Находится на территории Мнёвниковской поймы рядом со станцией метро «Терехово». Компания PEREPLAN помогает жителям комплекса улучшать планировку квартир, разрабатывать инженерные решения и согласовывать изменения. Мы работаем с объектами в ЖК «Остров», знаем требования управляющей компании и особенности инженерных систем в разных корпусах.
В этой статье подробно рассказываем, как законно улучшить квартиру в ЖК «Остров», какие ограничения важно учитывать и почему необходимо уделить внимание рабочей документации по инженерным сетям.
Особенности планировок в ЖК «Остров»
В ЖК «Остров» есть различные планировки: от студий до 8-комнатных квартир. Площадь объектов варьируется от 28,8 до 540 м². Высота потолков также разнится: от 3,1 до 5,05 м. Параметры помещений зависят от корпуса: есть квартиры и пентхаусы с кухней-столовой, террасой, зимним садом, панорамными окнами, а также ванной с окном. Бо́льшая часть квартир продаётся без отделки. Часть из них имеет так называемую «свободную планировку».
Что такое «свободная планировка»
В некоторых квартирах комплекса нет полноценных перегородок. Вместо них — трассировка блоками, с помощью которой обозначены контуры помещений. Такое пространство без внутренних стен называют «свободной планировкой».
«Свободная планировка» не означает, что вы можете демонтировать блоки и возвести перегородки по своему усмотрению. На строительном плане застройщика обозначены границы помещений, которые нужно учитывать. Менять их самовольно нельзя, иначе такие изменения будут считаться незаконными.
Вы можете прислать нам план своей квартиры — мы подскажем, как законно улучшить планировку от застройщика. Консультация бесплатная:
Бесплатная консультация
по вашему проекту
После заявки
-
1
Свяжемся с вами
Перезвоним в течение 2 минут и расскажем о возможности согласования, сроках и стоимости проекта.
-
2
Составим план
Инженер предложит понятный план дальнейших действий. Вы избежите частых ошибок и штрафов.
Как улучшить планировку в ЖК «Остров»: примеры
Есть разные способы, как улучшить планировку от застройщика и сделать квартиру более удобной. Вот несколько примеров наших проектов для ЖК «Остров».
Проект с переносом кухни
1-комнатная квартира на 2 этаже. Изначальная планировка: большая Г-образная комната, кухня, два санузла и коридор. Общая площадь — 86,1 м². Вместо полноценных перегородок — трассировка блоками.
В ходе перепланировки демонтировали блоки и установили перегородки в новых местах. Кухню перенесли на площадь бывшей комнаты. Квартира находится над нежилым помещением, поэтому такой перенос допустим. Также благодаря этому получилось увеличить один из санузлов на часть бывшей кухни. На остальной площади прежней кухни разместили кабинет и гардеробную. В итоге удалось организовать два изолированных помещения, а также увеличить площадь кухни с 19,8 до 29,7 м².
Проект с организацией кухни-столовой
2-комнатная квартира на 9 этаже. Исходная планировка: две жилые зоны (комнаты), кухня, терраса, коридор и 3 совмещённых санузла. Общая площадь — 118 м².
По итогам перепланировки присоединили к кухне часть одной из комнат и получили просторную кухню-столовую. Оставшуюся часть комнаты переоборудовали в кабинет. На месте одного из санузлов и части площади коридора организовали гардеробную со встроенным шкафом. Другую часть коридора использовали для размещения уборной. Вторую комнату разделили перегородкой и получили два жилых помещения, где можно организовать спальню и детскую. В итоге в квартире сохранились две комнаты, но вместо обычной кухни устроили кухню-столовую, а также нашли место для вспомогательных помещений.
Проект с увеличением кухни
1-комнатная квартира на 13 этаже. Первоначальная планировка: комната, санузел, коридор и кухня. Общая площадь — 45 м².
Границы помещений в этой квартире были обозначены с помощью блоков. Демонтировали трассировку и разместили перегородки и проёмы в новых местах. Вход в комнату перенесли и организовали со стороны кухни. Площадь комнаты и санузла сократили, благодаря чему удалось выделить место для устройства гардеробной. Также увеличили кухню на часть площади коридора. В итоге в квартире появилось дополнительное помещение — гардеробная, а кухня стала просторнее.
Смотрите наше видео, где мы рассказываем о том, какая перепланировка подойдёт для семьи с ребёнком:
Если у вас уже есть готовое планировочное решение от дизайнера, пришлите его нам. Мы проверим, соответствует ли оно действующим нормам. При необходимости поможем разработать новое решение с учётом ваших требований. Напишите нам и получите бесплатную консультацию:
Бесплатная консультация
по вашему проекту
После заявки
-
1
Свяжемся с вами
Перезвоним в течение 2 минут и расскажем о возможности согласования, сроках и стоимости проекта.
-
2
Составим план
Инженер предложит понятный план дальнейших действий. Вы избежите частых ошибок и штрафов.
С чего начинать перепланировку в ЖК «Остров»
Если вы получили ключи от квартиры и хотите сделать перепланировку, важно не спешить с ремонтными работами. В первую очередь необходимо проверить, можно ли согласовать запланированные изменения. Это поможет вам сэкономить силы, средства и выполнить законный ремонт, который не придётся переделывать.
Согласование ремонта
Вот несколько шагов от подготовки к ремонту до регистрации изменений:
- Получить первичный технический паспорт квартиры. Это нужно, чтобы зафиксировать исходную планировку, которая послужит отправной точкой для будущих работ. Для этого вызовите инженера БТИ, который проведёт обмер помещений.
- Узнать, возможно ли согласовать ремонт, который вы хотите провести. Можете обратиться к нам: мы подскажем, что можно сделать, а что нельзя.
- Заказать проект перепланировки. Он необходим, чтобы согласовать изменения в Мосжилинспекции (МЖИ). Разработкой проектов занимаются организации, которые имеют членство в СРО. Например, мы — компания PEREPLAN.
- Заказать рабочую документацию. Это необязательное требование, но такая документация позволит сделать ремонт в точности таким, как вы хотите. Она помогает контролировать расход материалов, даёт представление об объёме работ и гарантирует, что все инженерные системы будут работать исправно.
- Согласовать перепланировку. Проект и остальные документы подаются в Мосжилинспекцию через портал mos.ru. Согласование происходит онлайн, бумажные версии документов не нужны. После утверждения проекта в ваш личный кабинет придёт уведомление.
- Провести ремонт. Работы можно начинать после положительного решения Мосжилинспекции. Такие мероприятия как шумоизоляция пола и гидроизоляция санузла необходимо фиксировать в акте скрытых работ.
- Получить акт о завершённой перепланировке после ремонта. Для этого нужно вызвать инспектора МЖИ, который проверит итоговый результат на соответствие проекту.
- Зарегистрировать изменения в Росреестре. Данные обновятся и вы получите новую выписку ЕГРН.
Узаконивание ремонта после выполнения
Есть и другой путь — узаконить ремонт после того, как он выполнен. Если перепланировка не нарушает норм, то её можно согласовать по факту. Алгоритм действий следующий:
- Получите консультацию в организации с членством в СРО. Например, у нас — в компании PEREPLAN. Мы проверим, соответствует ли ремонт нормам. При необходимости можем взять на себя процедуру узаконивания.
- Вызовите инженера БТИ, чтобы оформить техпаспорт с красными линиями. В этом документе отражены несогласованные изменения, что служит основой для подготовки технического заключения о допустимости и безопасности произведённых работ.
- Подайте в МЖИ пакет документов, в которых зафиксированы изменения.
- Заплатите штраф за незаконную перепланировку: он составляет от 2000 до 2500 рублей. Эта процедура необходима, если работы проводились без предварительного согласования.
- Обеспечьте доступ в квартиру инспектору МЖИ. Он проверит выполненные работ на соответствие документам и оформит акт о завершении переустройства и перепланировки.
- Завершающий этап — обращение в БТИ для получения нового технического паспорта с учётом всех изменений.
Узаконивание по эскизу
Если вы планируете работы, которые можно узаконить по эскизу, вам не нужно получать разрешение на перепланировку заранее. Можете сделать ремонт, а потом подать документы в Мосжилинспекцию. Это законно — штраф платить не придётся. Главное, чтобы ремонт был выполнен по нормативам.
По эскизу можно узаконить следующие работы:
- Демонтаж/устройство перегородок и встроенных шкафов;
- Перенос дверных проёмов в перегородках;
- Демонтаж или перенос сантехники;
- Закладка проёмов в несущих стенах;
- Устройство подиумов, ступеней и пандусов внутри помещений.
Как узаконить по эскизу:
- Разработайте эскиз. Вы можете сделать это самостоятельно или заказать эскиз у специалиста. Членство в СРО для этого не требуется.
- Подайте заявление на получение акта о завершённой перепланировке через портал mos.ru.
- Получите акт о завершённой перепланировке.
- Обратитесь в БТИ с данным актом для внесения изменений в техпаспорт.
- Зарегистрируйте перепланировку в Росреестре и получите новую выписку ЕГРН.
В этом видео дополнительно рассказали, что нужно знать при ремонте в новостройке:
Ещё один полезный источник информации перед ремонтом — чат владельцев квартир в ЖК «Остров». Там можно узнать, как на практике организован ремонт, какие требования чаще всего предъявляет управляющая компания и с какими техническими особенностями уже сталкивались соседи. Там же вы можете ознакомиться с другими проектами перепланировки, которые реализовали жители комплекса.
Мы можем помочь вам получить первичный технический паспорт, разработать проект перепланировки, а затем пройти все этапы согласования. Спокойно выполняйте ремонт, после чего мы официально зарегистрируем его. Напишите нам — ответим на все вопросы и бесплатно проконсультируем:
Бесплатная консультация
по вашему проекту
После заявки
-
1
Свяжемся с вами
Перезвоним в течение 2 минут и расскажем о возможности согласования, сроках и стоимости проекта.
-
2
Составим план
Инженер предложит понятный план дальнейших действий. Вы избежите частых ошибок и штрафов.
Технические особенности ЖК «Остров»
Технические особенности квартир в ЖК «Остров» могут отличаться в зависимости от корпуса, так как в них применяются разные инженерные решения. Исходные данные помещений влияют на то, каким образом в квартире должны быть смонтированы инженерные системы.
Отопление
В квартирах с панорамным остеклением чаще всего применяют внутрипольные конвекторы. В том случае, если мощности конвекторов недостаточно, систему отопления дополняют радиаторами, которые размещают на внутренних стенах или простенках между окнами.
Вентиляция
Есть квартиры, в которых предусмотрен отдельный вентиляционный канал для кухонной вытяжки. Если специального вентканала нет, присоединять вытяжку к общедомовой системе вытяжной вентиляции запрещено, так как это приводит к разбалансировке системы и нарушает её работоспособность. В этих случаях можно использовать только вытяжку с угольным фильтром.
Кондиционирование
В разных корпусах применяются разные схемы кондиционирования. В одних квартирах предусмотрено место на фасаде под собственный наружный блок, в других — централизованная система, где наружная часть организована застройщиком. Если используется централизованная система, нужно обязательно учитывать совместимость наружных и внутренних блоков. Нельзя ставить любой внутренний блок: он может не заработать из-за несовместимости.
Исходная документация от управляющей компании «Смарт Сервис»
Большинство квартир в комплексе продаются без отделки, поэтому все коммуникации необходимо монтировать самостоятельно. Перед тем как начинать подобные работы, нужно запросить в управляющей компании «Смарт Сервис» исходную документацию. В ней содержится подробная техническая информация:
- Система отопления с точками подключения отопительных приборов, данными о выделенной тепловой мощности и графике теплоносителя;
- Точки подключения к сетям канализации;
- Точки ввода горячего и холодного водоснабжения;
- Объём вытяжной вентиляции с точками подключения на кухне и в санузле (важно не путать точки между собой: нельзя подключать кухню к вентканалу санузла и наоборот);
- Тип кондиционирования: наружный блок кондиционера или централизованная система (в этом случае указывается выделенная мощность холодоснабжения).
Вот так выглядят технические схемы в исходной документации:
Информация в исходной документации от УК «Смарт Сервис» позволит правильно провести коммуникации в квартире, а также подобрать такие приборы отопления и кондиционирования, которые соответствуют выделенным мощностям. Например, схему отопления нужно обязательно предоставить проектировщику или поставщику, который подбирает отопительные приборы. В противном случае есть риск разбалансировать систему и тогда в квартире станет либо слишком жарко, либо слишком холодно.
Рабочая документация для квартир в ЖК «Остров»
Важно, чтобы в квартире не только был привлекательный и удобный интерьер, но и правильно функционировали все инженерные системы. За это отвечает рабочая документация — комплект подробных чертежей, который включает в себя несколько разделов: электроснабжение, водоснабжение, канализацию, вентиляцию, отопление и спецификацию. От этого зависит не только комфорт, но и безопасность проживания в квартире.
Рабочая документация подготавливается на основе информации от управляющей компании и дизайн-проекта и содержит схему черновых работ: монтаж систем водоснабжения и канализации, организацию вентиляции, а также прокладку электропроводки к розеткам и выключателям.
Преимущества рабочей документации
- Гарантирует, что ремонт безопасен. Если работы выполнены по инженерным чертежам, вы можете быть уверены, что вас не ударит током, а в квартире не случится аварий или затоплений.
- Подтверждает, что ремонт будет выполняться по нормам и не повредит инженерное оборудование всего дома.
- Позволяет купить только нужные материалы, оборудование и не заплатить за лишний объём.
- Упрощает контроль качества работ. По документации можно проверить, соответствует ли фактический монтаж изначальному проекту.
- Помогает организовать ремонт более предсказуемо, уменьшает риск ошибок и дорогостоящих переделок.
Что такое спецификация
Спецификация — это перечень оборудования и материалов, которые используются при ремонте. В списке указываются их названия, марки, разновидности, количество и технические особенности. Например, в проекте электрооборудования будет указано количество автоматики и точная длина кабеля для электропроводки. Эти сведения помогут вам не заплатить лишнего и купить ровно столько материалов, сколько требуется.
Примеры рабочей документации
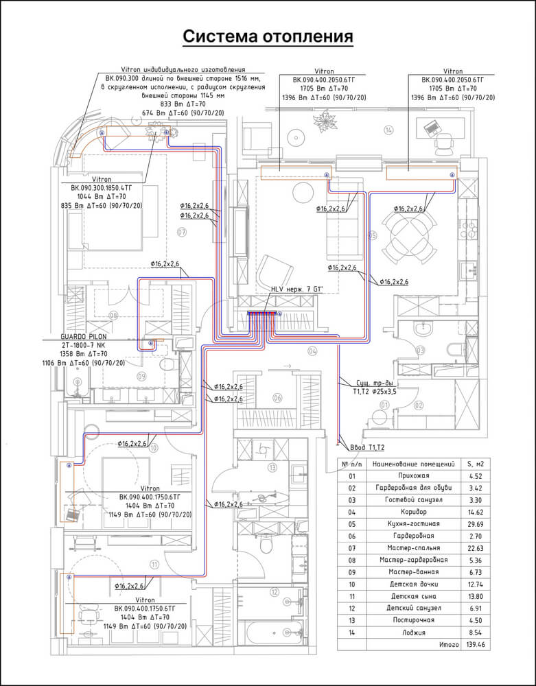
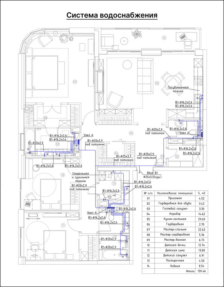
Компания PEREPLAN разрабатывает рабочую документацию для ЖК «Остров», в частности, проекты систем электроснабжения, водоснабжения и отопления. Вот пример схем инженерных сетей из документации для одной из квартир.
На схеме электрооборудования обозначено расположение проводки и розеток в местах подключения электроприборов и бытовой техники. Также в проект включена однолинейная схема электрического щита. Там прописываются все мощности и нагрузки, а также схема сборки самого электрощита.
На схеме отображаются места размещения труб (а также их диаметр) и приборов отопления. Также указываются тип, параметры и выделенная мощность отопительных приборов. Кроме того, в документе прописываются многочисленные технические подробности, например, материал труб и способ прокладки.
На картинке приведена схема холодного водоснабжения, где обозначается расположение водопроводных труб (и их диаметр) с точками подключения к сантехническому оборудованию (раковина, ванна) и бытовой технике (стиральная и сушильная машины). Также в составе документа есть схемы горячего водоснабжения и бытовой канализации. Всё это позволит разместить сантехнику там, где планировалось, чтобы в будущем не возникло проблем с канализацией и напором воды.
Стоимость и сроки согласования перепланировки
Компания PEREPLAN полностью берёт на себя процедуру согласования перепланировки. Вы можете не беспокоиться и заниматься своими делами.
- Мы подготовим все документы и получим разрешение на ремонт. После окончания работ зарегистрируем новую планировку.
- Стоимость согласования «под ключ» — от [price_pack_4] рублей. Итоговая цена будет зависеть от объёма и сложности работ.
- Процесс оформления без учёта времени на ремонтные работы занимает около 4–5 месяцев.
Итог
В ЖК «Остров» есть квартиры с различными планировками: от студий до 8-комнатных квартир. Любую из них можно улучшить с помощью грамотного проекта перепланировки: увеличить кухню, организовать кухню-столовую, добавить гардеробную или кабинет.
Изменения планировки требуют обязательного согласования. В Москве такие работы регламентируются постановлением № 508-ПП, а утверждением проектов занимается Мосжилинспекция. Подать проект перепланировки на согласование можно через портал mos.ru.
Компания PEREPLAN поможет вам организовать ремонтные работы. Мы разрабатываем проект перепланировки, подготавливаем рабочую документацию по инженерным системам, а также сами согласовываем все изменения в Мосжилинспекции. Планируете ремонт в ЖК «Остров»? Отправьте нам вашу планировку — мы подскажем, как её можно улучшить. Консультация бесплатная:
Бесплатная консультация
по вашему проекту
После заявки
-
1
Свяжемся с вами
Перезвоним в течение 2 минут и расскажем о возможности согласования, сроках и стоимости проекта.
-
2
Составим план
Инженер предложит понятный план дальнейших действий. Вы избежите частых ошибок и штрафов.
Часто задаваемые вопросы про перепланировку в ЖК «Остров»
С помощью перепланировки можно сделать квартиру более удобной. Например, организовать кухню-столовую или устроить гардеробную на части площади коридора. Итоговый вариант будет зависеть от ваших потребностей, а также от того, какие изменения можно реализовать в конкретной квартире.
При переносе кухни важно, чтобы она не оказалась над комнатой соседей снизу и под санузлом соседей сверху. При этом кухню можно размещать над и под такими помещениями, как коридор, гардеробная, кладовая и постирочная. Перед переносом проверяйте планировки квартир выше и ниже этажом.
При расширении санузла важно, чтобы он не оказался над комнатой или кухней соседей снизу. Таким образом, его можно расширять на другие помещения: коридор, постирочную, гардеробную и кладовую. Перед началом перепланировки проверьте, как располагаются помещения в квартире под вами.
В ЖК «Остров» разрешается демонтировать перегородку между кухней и комнатой (или трассировку блоками) и организовать кухню-столовую. При этом важно помнить, что мойка, плита и посудомоечная машина должны оставаться в кухонной зоне. Переносить их в обеденную зону на площади бывшей комнаты запрещено. Также в обеденной зоне нельзя делать покрытие в виде плитки или керамогранита. Кроме того, если вы проводите такой ремонт в однокомнатной квартире, важно сохранить изолированное жилое помещение площадью не менее 14 м².









.jpg)
.jpg)
.jpg)




